Properties at Ventana offer the privacy of a gated mountain community with unsurpassed views of the Blue Ridge Mountains, downtown Asheville, and the surrounding areas. The building locations on each 1 to 3-acre property have been carefully designated to provide the best possible views.
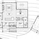
Our architectural team has developed several designs that combine modern luxuries with an aesthetic that meshes with the natural surroundings. Choose from our award winning designs.
- Davos
- Davos Rear
- Davos Main Floor



